Leave a Message

Thank you for your message. I will be in touch with you shortly.

Explore My Properties

Property Description

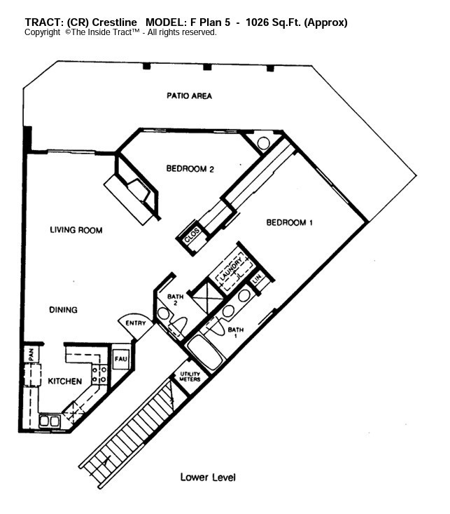
This beautiful turnkey condo is located in the quiet Crestline community. This downstairs unit has vaulted ceilings, a renovated kitchen, quartz countertops, newer appliances, upgraded baseboards, and laminate flooring. It also has a huge private back patio. The master suite features plantation shutters, a spacious closet, and a bathroom with granite counters. Bordering Aliso Viejo and Laguna Niguel, this unit is conveniently located to the Toll Roads, 5 Fwy, retail, and dining. Comes with a carport; HOA dues and trash are included; dogs considered with additional fee and deposit.

Overview

Property Status
Leased
MLS ID
OC25066323
Property Type
Condo
Year Built
1986

Features & Amenities

Neighborhood
Laguna Hills
View Description
Neighborhood
Stories
1
Water Source
Public
Pool
Association
Heat Type
Central
Air Conditioning
Central Air
Laundry Room
Laundry Closet
Fireplace
Living Room
Appliances
Dishwasher, Gas Range, Microwave, Refrigerator, Dryer, Washer
Other Interior Features
All Bedrooms Down, Bedroom on Main Level, Main Level Primary
Sewer
Public Sewer
HOA Amenities
Clubhouse, Spa/Hot Tub
Security Features
Carbon Monoxide Detector(s), Smoke Detector(s)
School District
Saddleback Valley Unified
Lease Price
$2,900/mo
Lease Term
12 MONTHS

Downloads

24306 Sage Court

Schedule a Tour

I would love to help you see this beautiful home! As a full-service brokerage, we can help you tour. Please submit an offer, and answer questions about the buying process.

Enter a valid email

Thank you

for your interest in 24306 Sage Court, Laguna Hills, CA 92653

back to page
24306 Sage Court
Navigate
Laguna Hills

Explore Laguna Hills

read more

I'm Interested In

24306 Sage Court

or
  • CallKai Steijn

    License #02135965

    (949) 374-8847
  • Past Transactions

    • 1977 Port Cardiff Place Sold

      $4,695,000

      1977 Port Cardiff Place, Newport Beach, CA 92660

      • 6 Beds
      • 5 Baths
      • 3,750 Sq.Ft.
    • 26 Alisal Court Sold

      $3,040,000

      26 Alisal Court, Aliso Viejo, CA 92656

      • 5 Beds
      • 5 Baths
      • 3,892 Sq.Ft.
    • 1129 Village Dr Sold

      $1,350,000

      1129 Village Dr, Oceanside, CA 92057

      • 5 Beds
      • 4 Baths
      • 3,416 Sq.Ft.
    • 16139 Crooked Creek Court Sold

      $1,225,000

      16139 Crooked Creek Court, Chino Hills, CA 91709

      • 5 Beds
      • 3 Baths
      • 2,673 Sq.Ft.
    • 21405 Carabela Sold

      $1,040,000

      21405 Carabela, Mission Viejo, CA 92692

      • 2 Beds
      • 3 Baths
      • 1,680 Sq.Ft.
    • 27695 Via Turina Sold

      $999,000

      27695 Via Turina, Mission Viejo, CA 92692

      • 3 Beds
      • 2 Baths
      • 1,503 Sq.Ft.
    • 71 Waxwing Lane Sold

      $850,000

      71 Waxwing Lane, Aliso Viejo, CA 92656

      • 3 Beds
      • 3 Baths
      • 1,372 Sq.Ft.
    • 28474 Yosemite Drive Sold

      $780,000

      28474 Yosemite Drive, Trabuco Canyon, CA 92679

      • 3 Beds
      • 3 Baths
      • 1,256 Sq.Ft.
    • 23731 Via Storni Sold

      $725,000

      23731 Via Storni, Mission Viejo, CA 92692

      • 2 Beds
      • 2 Baths
      • 1,114 Sq.Ft.
    • 3086 Via Serena N C Sold

      $685,000

      3086 Via Serena N C, Laguna Woods, CA 92637

      • 3 Beds
      • 2 Baths
      • 1,181 Sq.Ft.
    • 114 Via Estrada B Sold

      $680,000

      114 Via Estrada B, Laguna Woods, CA 92637

      • 2 Beds
      • 2 Baths
      • 1,275 Sq.Ft.
    • 2248 A Via Mariposa E Sold

      $675,000

      2248 A Via Mariposa E, Laguna Woods, CA 92637

      • 2 Beds
      • 2 Baths
      • 1,075 Sq.Ft.
    • 5507 Old Ranch Road 11 Sold

      $672,000

      5507 Old Ranch Road 11, Oceanside, CA 92057

      • 3 Beds
      • 3 Baths
      • 1,394 Sq.Ft.
    • 4296 Estrada Drive Sold

      $605,000

      4296 Estrada Drive, Jurupa Valley, CA 92509

      • 3 Beds
      • 2 Baths
      • 1,294 Sq.Ft.
    • 2345 Via Mariposa W B Sold

      $572,500

      2345 Via Mariposa W B, Laguna Woods, CA 92637

      • 2 Beds
      • 2 Baths
      • 1,075 Sq.Ft.
    • 804 Ronda Mendoza A Sold

      $549,000

      804 Ronda Mendoza A, Laguna Woods, CA 92637

      • 2 Beds
      • 2 Baths
      • 1,010 Sq.Ft.
    • 3138 Via Vista D Sold

      $535,000

      3138 Via Vista D, Laguna Woods, CA 92637

      • 1 Bed
      • 1 Bath
      • 785 Sq.Ft.
    • 811 Ronda Mendoza P Sold

      $353,000

      811 Ronda Mendoza P, Laguna Woods, CA 92637

      • 2 Beds
      • 2 Baths
      • 1,009 Sq.Ft.
    • 2276 Via Mariposa E B Sold

      $278,100

      2276 Via Mariposa E B, Laguna Woods, CA 92637

      • 1 Bed
      • 1 Bath
      • 679 Sq.Ft.
    • 24055 Paseo Del Lago 805 Sold

      $235,000

      24055 Paseo Del Lago 805, Laguna Woods, CA 92637

      • 2 Beds
      • 2 Baths
      • 1,136 Sq.Ft.
    • 24055 Paseo Del Lago 703 Sold

      $215,000

      24055 Paseo Del Lago 703, Laguna Woods, CA 92637

      • 2 Beds
      • 2 Baths
      • 1,200 Sq.Ft.
    • 31301 Avenida Terramar Leased

      $10,800/mo

      31301 Avenida Terramar, San Juan Capistrano, CA 92675

      • 4 Beds
      • 4 Baths
      • 3,498 Sq.Ft.
    • 28702 Sea Point Leased

      $10,000/mo

      28702 Sea Point, Laguna Niguel, CA 92677

      • 5 Beds
      • 5 Baths
      • 3,840 Sq.Ft.
    • 11 Southern Hills Drive Leased

      $8,000/mo

      11 Southern Hills Drive, Aliso Viejo, CA 92656

      • 4 Beds
      • 3 Baths
      • 2,525 Sq.Ft.
    • 3383 Marigold Circle Leased

      $7,000/mo

      3383 Marigold Circle, Costa Mesa, CA 92626

      • 4 Beds
      • 3 Baths
      • 2,409 Sq.Ft.
    • 3214 Via Carrizo C Leased

      $3,800/mo

      3214 Via Carrizo C, Laguna Woods, CA 92637

      • 3 Beds
      • 2 Baths
      • 1,213 Sq.Ft.
    • 71 Brownstone Way 144 Leased

      $3,700/mo

      71 Brownstone Way 144, Aliso Viejo, CA 92656

      • 2 Beds
      • 2 Baths
      • 1,457 Sq.Ft.
    • 118 B E Mariposa Leased

      $3,100/mo

      118 B E Mariposa, San Clemente, CA 92672

      • 2 Beds
      • 1 Bath
      • 652 Sq.Ft.
    • 24306 Sage Court Leased

      $2,900/mo

      24306 Sage Court, Laguna Hills, CA 92653

      • 2 Beds
      • 2 Baths
      • 1,026 Sq.Ft.
    View All

    Follow Us On Instagram